Abri de jardin Outdoor Life Sussex 2 avec plancher 630 x 470 cm gris clair
Prix — 9029,00 € * Tous les prix affichés sont des prix TTC, frais de livraison en sus si nécessaire par pce
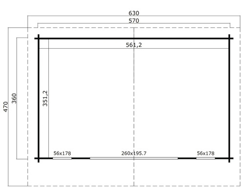
- Taille l x p sans avancée de toit: 570 x 360 cm
- Epaisseur du mur: 44 mm
- Résistance à la charge de la neige: 0,745 kN/m²
Se faire livrer confortablement
HORNBACH Bertrange
- Nous commandons pour toi – sur place au magasin !
- Livraison env. 9-10 semaines
Détails de l'article
Sauter une section
- Largeur extérieure, y compris avancée de toit630 cm
- Profondeur extérieure, y compris avancée de toit470 cm
- Taille l x p sans avancée de toit570 x 360 cm
- Surface d'implantation en m²19,71 m²
- Dimensions intérieures en cm561.2 cm x N/A
- Volume bâti69,5 m³
- Epaisseur du mur44 mm
- Hauteur des parois latérales210,9 cm
- Hauteur du faîtage239,4 cm
- ConstructionSystème de madriers
- SolOui
- Inclus dans la livraisonNotice de montage, accessoires
- Non contenu dans le matériel fourni d'origineL'outillage et un équipement de protection comme par ex. des lunettes et des gants de protection ne sont pas inclus dans le matériel fourni
- Surface de toit30,2 m²
- Épaisseur du toit18 mm
- Résistance à la charge de la neige0,745 kN/m²
- Avancée de toit avant80 cm
- Avancée de toit latérale30 cm
- Avancée de toit arrière30 cm
- Inclinaison du toit3,7 °
- Matériau de la couverture de toitAucun(e)
- Matériau du toitÉpicéa
- Sous-toitureBois massif
- Besoin en bardeaux en m²0
- Propriété-
- RemarqueAprès le montage, les éléments naturels doivent être recouverts à l'intérieur et à l'extérieur d'au moins une couche de produit de protection du bois incolore. Utilisez de préférence des produits à base d'eau et renouvelez la couche de protection tous les deux ans au minimum.
- Accessoires requisPour un montage dans les règles de l'art, il vous faut notamment: tournevis cruciforme et éventuellement tournevis Torx, visseuse sans fil, foret à bois, perceuse, pince universelle, cutter à tapis, scie, mètre pliant, niveau à bulle, cordeau, marteau, crayon, éventuellement colle, serre-joints et une échelle. Les outils ainsi que l'équipement de protection comme les lunettes ou les gants de protection ne sont pas inclus dans le matériel fourni, mais vous devriez les porter pour votre protection.
- RemarquePour de plus amples informations, merci de vous reporter à la fiche technique. Pour convenir d'une date de livraison, veuillez indiquer un numéro de téléphone portable ou fixe sur lequel vous êtes joignable en journée.
- Type d'articleAbri de jardin
- VersionRésidence secondaire et de week-end
- Domaine d'applicationHome Office, Machines de jardinage, Meubles de jardin
- Couleur de baseGris
- ColorisGris clair
- Équipement sériePlancher, Fenêtre
- SérieSussex
- Forme du toitToit en appentis
- MatériauBois
- Spécification du matériauÉpicéa
- Interface/traitement de l'interfaceLasuré
- Type de traitement de surfaceAucun(e)
- Imprégné en autoclaveNon
- Vitrage de la fenêtreVerre isolant
- Nombre de fenêtres2 fenêtres individuelles
- Nombre de fenêtres ouvrables2
- Type de portePorte pliante double
- Largeur de passage260 cm
- Hauteur de passage195,7 cm
- Vitrage de la porteVerre isolant
- Équipement de sécuritéSerrure à cylindre profilé
- Nombre de pièces1
- Poids1.622 kg
- RCANGC
- EAN4743329232269
Certificats & services
Fiches de données
Description
Sauter une section
Dans cet abri de jardin moderne à toit plat, vous pouvez profiter encore plus des plaisirs de l'été en ouvrant la porte pliante en grand. En l'utilisant comme bureau à domicile, vous pouvez laisser libre cours à vos pensées en profitant de la vue sur la verdure et être ainsi sûr d'arriver plus rapidement à remplir vos objectifs de travail.
Avis clients
Sauter une section
Nous n'avons pas vérifié l'authenticité des évaluations. Les évaluations peuvent également provenir de clients dont il n'est pas prouvé qu'ils aient utilisé ou acheté la marchandise.
