Marque au crayon les endroits où les tubes de bambou doivent être raccourcis. Scie-les ensuite à la longueur nécessaire à l'aide d'une scie égoïne.
Construire soi-même un bar tiki
Aloha! Fais entrer un peu d'ambiance tropicale chez toi. Nous te montrons comment construire toi-même ce bar exceptionnel. Il attirera tous les regards.

Ce dont tu auras besoin
Préparation
Les tubes de bambou présentent des épaississements à intervalles plus ou moins réguliers. Ces endroits ne peuvent pas être poussés plus tard à travers les trous de perçage.
Lors de la découpe des tubes, laisse donc suffisamment d'espace entre l'extrémité du tube et le premier renflement.
- Tube ø 8 cm: au moins 16 cm d'écart
- Tube ø 5 cm: au moins 12 cm d'écart
Prévois les chutes qui en résultent lors de l'achat du matériel.
Découpes de tubes/tiges de bambou
| Dalles de terrasse en béton 80 longueur x 40 largeur x 5 hauteur cm (4x) Planches en bois massif 166 longueur x 40 largeur x 3 hauteur cm (2x) |
Un travail précis est essentiel
Pour percer les tubes en bambou, utilise un support de perçage et fixe la perceuse et le tube en bambou afin de pouvoir travailler avec précision. Pour les raccords, deux tubes d'épaisseur différente sont toujours assemblés.
Si le perçage n'est pas effectué exactement en face, l'assemblage ne sera pas perpendiculaire ou le tube le plus fin ne pourra pas être inséré dans les deux trous.
Découper le bambou
Pré-percer les tubes de bambou
Marque d'abord l'axe de perçage sur le bord de coupe à l'extrémité du tube le plus épais. Marque ensuite sur le tube le plus épais les positions où les tubes plus fins seront ensuite insérés. Perce ensuite le premier trou de centrage avec un foret à métaux de 5 mm. Tourne le tube dans l'étau d'exactement 180° - tiens compte du marquage - et perce le trou du côté opposé.
Réaliser des trous pour les emboîtements
Aux endroits prépercés, découpe un trou circulaire à l'aide d'une scie cloche pour y insérer le tube de bambou le plus fin. Utilise pour cela une scie cloche du même diamètre que le tube plus fin qui doit être glissé. Perce le premier trou et fais ensuite tourner le tube de 180 degrés dans l'étau pour répéter l'opération de l'autre côté. Tu obtiendras ainsi un trou continu dans lequel tu pourras insérer le tube de bambou le plus fin.
Étapes de travail
Fabriquer les parties latérales
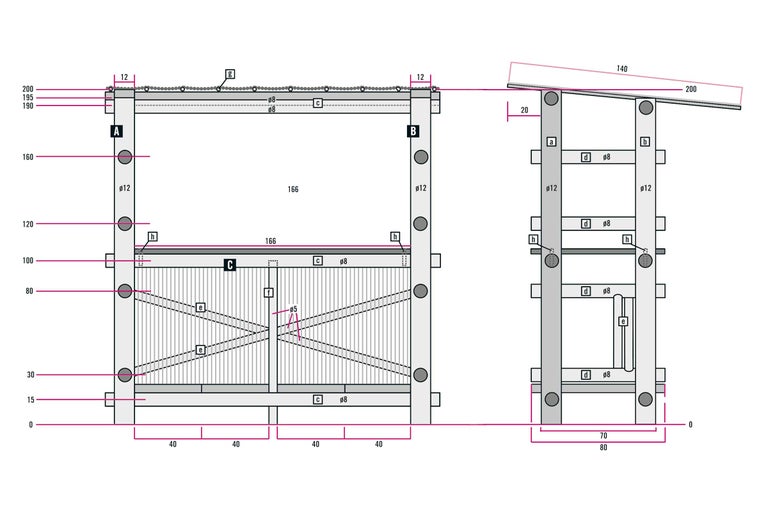
Perce d'abord les trous pour les entretoises (d) dans les tubes (a) et (b). Perce ensuite les trous pour les deux raccords longitudinaux (C) qui permettront plus tard de relier les deux parties latérales (A) et (B). Pour stabiliser la construction, deux entretoises diagonales (e) seront insérées plus tard dans les deux entretoises inférieures - perce pour cela un trou d'un seul côté (!) dans chacune des quatre entretoises inférieures (d). Lorsque tous les trous nécessaires ont été percés, les deux parties latérales (A) et (B) peuvent être montées.
Fabriquer l'élément de plancher
Les deux éléments (C) pour l'avant et l'arrière sont identiques. Fabrique-les selon le même principe à partir de 2 entretoises longitudinales (c) et d'un tube de soutien vertical (f). Veille à ce que l'entretoise longitudinale supérieure (c) ne soit percée que d'un seul côté, car le tube de soutien (f) est introduit ici d'un seul côté et n'est pas enfoncé.
Assembler les parties latérales et les fonds
A partir de maintenant, travaillez à deux. Le bar est plus facile à assembler si son dos est posé sur le sol - placez une couverture ou autre sous le bar. Relie la partie latérale (A) aux deux liaisons longitudinales (C) et vérifie l'équerrage.
Relier le tout
Insérez maintenant les deux entretoises diagonales (e) et les deux entretoises longitudinales supérieures (c) dans les trous prévus à cet effet sur la partie latérale (A). Maintenant, place la partie latérale (B) sur les six entretoises longitudinales (c) et les deux entretoises diagonales (e).
Fixer les raccords d'angle
Les tubes de bambou sont un matériau naturel, c'est pourquoi leur diamètre peut varier. Les raccords ont donc un peu de "jeu". Fixe en plus les raccords avec une corde pour qu'ils ne bougent plus. Redresse ensuite le bar et pose-le sur ses pieds. A partir de maintenant, tu peux continuer à travailler seul.
Découper le panneau de comptoir
Pour la fabrication du panneau de comptoir, tu peux utiliser des planches de bois massif, par exemple en douglas. Pour obtenir une largeur de 80 cm, il faut deux planches de 40 cm de large chacune, qui seront ensuite assemblées pour former un panneau de comptoir cohérent. Scie les deux planches aux dimensions 166 x 40 cm. Pour obtenir des coupes nettes et précises, il est préférable d'utiliser une scie plongeante ou une scie circulaire manuelle avec un rail de guidage.
Relier le panneau de comptoir
Perce des trous de chevilles dans les abouts à l'aide d'un gabarit à chevilles. Applique de la colle sur les faces de jonction et les chevilles. Serre fermement les deux planches à l'aide de plusieurs serre-joints. Ne desserre les étaux que lorsque le temps de durcissement prescrit par le fabricant de colle est atteint. Tu obtiendras ainsi un panneau de comptoir stable et assemblé.
Pré-percer le panneau du comptoir
Pose le panneau de comptoir sur les montants centraux et fixe-le à l'aide de serre-joints. Ainsi, le panneau ne pourra pas glisser lors de l'étape suivante. Perce d'abord un trou dans chaque coin du panneau en bois massif à l'aide d'une mèche à bois de 20 mm: au centre, au-dessus du tube sur lequel il repose. Continue à percer le tube en bambou avec une mèche métallique de 20 mm - mais uniquement à travers la face supérieure, pas à travers la face inférieure.
Fixer le panneau du comptoir
Scie quatre morceaux de 10 cm de long (boulons) dans l'une des fines tiges de bambou (ø 2 cm). Introduis ces boulons (h) dans les trous du panneau de comptoir et dans les tubes en dessous. Le panneau est ainsi fixé et repose en toute sécurité sur les tubes.
Insérer une dalle en béton
Le bar a besoin d'un centre de gravité bas pour être stable. Pour ce faire, pose des dalles de terrasse en béton (80 x 40 x 5 cm) sur les deux tubes longitudinaux inférieurs. Cela permet de créer un espace de rangement pratique dans lequel on peut par exemple déposer des caisses de boissons.
Répartir les tiges comme toit
Répartis les dix tiges de bambou de 140 cm de long et de ø 2 cm uniformément sur le toit du bar. Fixe les tiges à tous les points d'appui à l'aide d'une corde pour former un cercle. Les tiges relient les deux barres longitudinales supérieures et soutiennent la natte de toit.
Poser la natte de roseaux
Couvre le toit avec 200 cm de natte en roseau. (Tu auras besoin du reste de la natte lors de l'étape suivante.) À l'aide d'un sécateur, découpe un trou dans la natte pour chaque tige de bambou verticale. Fixe ensuite la natte en roseau à l'aide d'une ficelle aux tiges de bambou sur lesquelles elle repose.
Revêtir l'espace de rangement avec des roseaux
Recouvre ensuite l'espace de rangement sous le plateau du comptoir avec des nattes en roseau. Pour que les nattes s'intègrent bien dans la construction, découpe certains endroits à l'aide d'un sécateur avant de les fixer. Découpe deux nattes de 70 x 70 cm pour les deux côtés et fixe-les à l'intérieur à l'aide d'une ficelle sur les tiges de bambou sur lesquelles elles reposent. Découpe une autre natte pour l'avant, d'environ 175 x 70 cm. Elle est placée entre les traverses diagonales et le tube de bambou vertical central et également fixée avec une ficelle aux tubes sur lesquels elle repose. Ton nouveau bar aux airs d'île tropicale est terminé.
Mets de la couleur dans ton jeu
Le panneau de comptoir peut être coloré ou recouvert d'un vernis transparent - pour une plus grande résistance à l'usure ou simplement pour des raisons esthétiques.


























