Die Winkelprofile entsprechend der Skizze mit der Metallsäge kürzen.
Outdoor Küche aus Holz selber bauen
Wenn der Appetit Deiner Partygäste besonders groß ist, musst Du einiges bieten – mit der Outdoor-Küche Barney von BUILDIFY bist Du voll ausgestattet. Hier kannst Du Dich als Küchenchef austoben. Mach alles selbst: bauen, kochen, genießen.

Betonplatte gießen
Maße:
- Große Betonplatte 40x650x1200 mm
- Kleine Betonplatte 40x600x650 mm

Winkelprofile kürzen
Gießform kleine Betonplatte
Die zugeschnittene große Siebdruckplatte auf ebenen Untergrund legen – mit der rauen Seite nach unten. Die zugeschnittenen Winkelprofile ca. alle 100 mm vorbohren (s. Skizze), mit der flachen Seite bündig zu den Rändern der Siebdruckplatte ausrichten und mit insgesamt 22 Schrauben (4,5x20 mm) verschrauben.
Gießform große Betonplatte
Auf die gleiche Weise die Gießform für die kleine Betonplatte herstellen. Danach jede Form mit der Wasserwaage in beiden Achsen exakt ausrichten, damit die Betonplatten gleichmäßig dick werden.
Aussparungen für Spülbecken und Küchenarmatur
Für die Aussparungen für das Spülbecken und die Küchenarmatur in der Betonplatte aus der Hartschaumplatte jeweils einen Kreis aussägen – beachte dazu den Durchmesser des Spülbeckens und den der Armatur. Die runden Platten spiegelverkehrt an den gewünschten Stellen ausrichten, weil die Platten später umgekehrt auf den Spülschrank gelegt werden!
Beton anrühren und gießen
Die folgenden Schritte jeweils für die große und die kleine Platte durchführen. Wasserbedarf große Form: 14 l, kleine Form: ca. 8 l. Sand und Beton in der angegebenen Menge in den 90-Liter-Mörtelkübel einfüllen. Bei langsamer Stufe des Rührwerks in kleinen Portionen Wasser und Glasfaserflocken einrühren, bis nach 10 bis 15 Minuten eine sämige Masse entsteht. Nun den Verflüssiger gemäß den Angaben auf der Verpackung einrühren und die fertige Masse sofort in die Form gießen. Danach die Oberfläche mit der Abziehleiste vorsichtig nachziehen.
Betonplatte lösen
Nach ca. 6 Tagen Trockenzeit die schmalen Leisten vorsichtig entfernen. Auf einem weiteren Arbeitstisch Querleisten für die Belüftung auslegen, die Platten darauf ablegen und vollständig aushärten lassen. Danach mit dem Schleifer den Grat an den Kanten entfernen.
Der Zement benötigt mindestens 28 Tage bis er seine vollständige Druckfestigkeit erreicht hat.
Sicherheitshinweis zur Arbeit mit Beton
Feuchter Beton reagiert stark alkalisch, deshalb kann es bei Hautkontakt zu Verätzungen, Entzündungen und Allergien kommen. Beachte bei der Betonverarbeitung alle Sicherheitshinweise des Herstellers, trage Arbeitskleidung mit langen Ärmeln, Handschuhe, Augenschutz und Sicherheitsschuhe. Falls Du dennoch mit Beton in Berührung kommst, wasche ihn mit viel Wasser ab und wechsel die Kleidung. Achte bei Schutzbehandlungen oder Oberflächentexturenauf Unverträglichkeiten. Ist der Beton einmal ausgehärtet, geht von ihm kein Risiko mehr aus.
Spülenschrank bauen
Zuschnittsliste Siebdruckplatten (18 mm):
- Rückwand: 1 Stück à 1134x767 mm
- Bodenplatte: 1 Stück à 1134x583 mm
- Sockelstreifen: 2 Stücke à 447x100 mm (Tiefe)
- Sockelstreifen: 2 Stücke à 1170x100 mm (Breite)
- Zwischenwand: 1 Stück à 565x749 mm
- Seitenwände: 2 Stücke à 583x785 mm
- Querstreben: 2 Stücke à 1134x100 mm
- Tür: 1 Stück à 537x777 mm
- Einlegeboden: 1 Stück à 603x565 mm
Die Siebdruckplatten so vorbohren und senken, dass ihre glatten Seiten später das Innere des Korpus bilden und die strukturierte Oberfläche nach außen zeigt.
Zuschnittliste Latten für Spritzwand (Furnierschichtholz 24x40x2400 mm):
- lang: 2 Stücke à 40x1770mm
- kurz: 4 Stücke à 40x535 mm

Siebdruckplatten vorbohren
Alle zugeschnittenen Siebdruckplatten entsprechend den folgenden Bohrskizzen mit dem „Vorbohrer mit Senker“ vorbohren.
Tipp zum Bohren
Für das Bohren empfiehlt sich ein „Vorbohrer mit Senker“. Damit entsteht am oberen Ende des Bohrlochs ein Konus, der Platz für den Schraubenkopf bietet. Der Schraubenkopf steht dadurch nicht über, und Du vermeidest Risse im Holz!
Durch diese Bohrlöcher verschraubst Du später die Querstreben mit der Rückwand.

Möchtest Du später einen Kühlschrank auf dem Einlegeboden platzieren? Dann empfiehlt es sich, eine Lüftungsfläche von ca. 250x350 mm aus der linken Seite der Rückwand auszusägen.
(Beachte für die genaue Platzierung der Lüftungsfläche auch die Maßangaben des Kühlschranks.)

Durch diese Bohrlöcher verschraubst Du später die Bodenplatte mit der Rückwand.

Durch diese Bohrlöcher verschraubst Du später den Sockel auf dem der Spülenschrank steht.

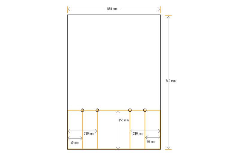
Durch diese Bohrlöcher verschraubst Du später diese Zwischenwand mit dem Einlegeboden.

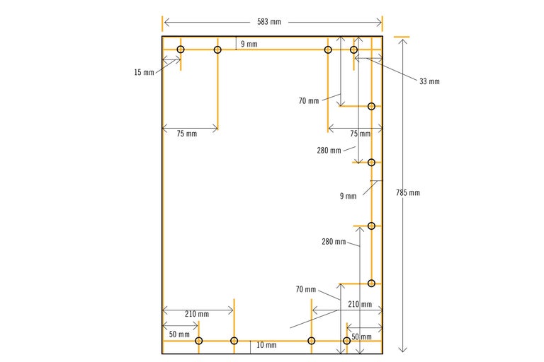
Durch diese Bohrlöcher verschraubst Du diese linke Seitenwand später mit der Bodenplatte, der Rückwand und den Querstreben.

Durch diese Bohrlöcher verschraubst Du diese rechte Seitenwand später mit der Bodenplatte, der Rückwand und den Querstreben. Die vorgebohrte, linke Seitenwand kann spiegelverkehrt (!) als Bohrschablone verwendet werden: Dazu die Löcher ohne Senker durchbohren und anschließend auf der Rückseite (spätere Außenseite) senken.

Auf der Innenseite der rechten Seitenwand mit dem Bleistift die Linien (gestrichelt dargestellt) entsprechend der Skizze anzeichnen. Diese Linien brauchst Du später zum Einpassen der Türscharniere.

Durch diese Bohrlöcher verschraubst Du später diese Querstreben mit den beiden Seitenwänden.

Siebdruckplatten schleifen
Die Kanten aller Siebdruckplatten mit dem Exzenterschleifer schleifen, bis alle rauen Stellen glatt sind und keine Gefahr mehr durch Splitter und Späne besteht.
Korpus verschrauben
Die Rückwand außen und hinten bündig auf die Bodenplatte stellen, zwischen den Seitenwänden im rechten Winkel ausrichten und mit insgesamt 23 Schrauben (4,5x40 mm) entsprechend der Bohrskizzen verschrauben.
Querstreben mit Korpus verschrauben
Die Querstreben außen und oben bündig zwischen den Seitenwänden ausrichten und mit je vier Schrauben (4,5x40 mm) mit den Seitenwänden verschrauben, die hintere Strebe zusätzlich mit fünf Schrauben (4,5x40 mm) mit der Rückwand.
Zwischenwand und Einlegeboden verschrauben
Die Zwischenwand einschieben und mit zwei Schrauben (4,5x40 mm) von oben mit den Querstreben sowie mit vier Schrauben (4,5x40 mm) von unten mit der Bodenplatte verschrauben. Anschließend den Einlegeboden mit je vier Schrauben (4,5x40 mm) mit der linken Seitenwand und der Zwischenwand verschrauben.
Sockel verschrauben
Die Sockelstreifen mit dem Schreinerwinkel im rechten Winkel ausrichten und entsprechend den Bohrskizzen mit insgesamt acht Schrauben (4,5x40 mm) miteinander verschrauben.
Sockel mit Bodenplatte verbinden
Korpus umdrehen und den Sockel in der Tiefe mittig und seitlich bündig auflegen. An jeder kurzen Seite innen zwei Winkel (40x40x40 mm) im Abstand von 40 mm zu den langen Seiten ausrichten. Winkel mit je 4 Schrauben (3,5x16 mm) an Bodenplatte und Sockel verschrauben. Zwei weitere Winkel mit je vier Schrauben (3,5x16 mm) mittig an den langen Sockelstreifen an der Bodenplatte und Sockel verschrauben.
Möbelfüße anbringen
Vier Möbelfüße im Abstand von 50 mm zu den langen Seiten mit je vier Schrauben (3,5x16 mm) direkt vor die Winkel auf die Bodenplatte schrauben.
Scharniere auf der Tür montieren
Entsprechend der Skizze zwei Markierungen für die Zentrierspitze des Forstnerbohrers (40 mm) aufzeichnen und 15 mm tief bohren. Anschließend die Scharniere exakt im rechten Winkel zur langen Seite verschrauben.
Tür montieren
Die Scharniere entsprechend der Seitenwand-Skizze (innen) an der rechten Seitenwand verschrauben: Die Oberkante des oberen Scharniers liegt an der Linie (30 mm zur oberen Kante) an. Die Unterkante des unteren Scharniers liegt an der Linie (30 mm zur unteren Kante) an. Auf der senkrechten Linie (36 mm zur Seite) werden die Schrauben gesetzt. Anschließend den Push-to-open-Türöffner gemäß Herstelleranleitung auf der Innenseite der Zwischenwand mit dem beiliegenden Montagematerial befestigen.
Bohrskizze Spritzwand
Die Latten entsprechend der Skizze mit dem Schreinerwinkel rechtwinklig ausrichten und jede Verbindung mit je zwei Schrauben (4,5x50 mm) ohne Vorbohren verschrauben.
Rahmen für die Spritzwand montieren
Entsprechend der Skizze auf der Rückseite der Spritzwand mittig auf den Latten sechs Bohrlöcher markieren.
Tipp: Wasseranschluss
Abhängig vom Wasseranschluss vor Ort an einer geeigneten Stelle auf der Rückseite oder der rechten Außenseite des Spülenschranks mit dem Steckdosenbohrer ein Loch für die Ablaufgarnitur bohren.
Küchenschrank bauen
Zuschnittliste Siebdruckplatten (18 mm):
- Rückwand: 1 Stück à 564x767 mm
- Bodenplatte: 1 Stück à 564x583 mm
- Sockelstreifen: 2 Stücke à 447x100 mm (Tiefe)
- Sockelstreifen: 2 Stücke à 600x100 mm (Breite)
- Seitenwände: 2 Stücke à 583x785 mm
- Querstreben: 2 Stücke à 564x100 mm
- Tür: 1 Stück à 588x777 mm
- Einlegeboden: 1 Stück à 564x565 mm
Die Siebdruckplatten so vorbohren und senken, dass ihre glatten Seiten später das Innere des Korpus bilden und die strukturierte Oberfläche nach außen zeigt.

Siebdruckplatten vorbohren
Alle zugeschnittenen Siebdruckplatten entsprechend den folgenden Bohrskizzen mit dem „Vorbohrer mit Senker“ vorbohren.
Tipp zum Bohren
Für das Bohren empfiehlt sich ein „Vorbohrer mit Senker“. Damit entsteht am oberen Ende des Bohrlochs ein Konus, der Platz für den Schraubenkopf bietet. Der Schraubenkopf steht dadurch nicht über, und Du vermeidest Risse im Holz!
Durch diese Bohrlöcher verschraubst Du später die hintere Querstrebe mit dieser Rückwand. (Zur Orientierung siehe auch Illustration am Anfang dieser Anleitung.)

Durch diese Bohrlöcher verschraubst Du später diese Bodenplatte mit der Rückwand.

Durch diese Bohrlöcher verschraubst Du später den Sockel, auf dem der Küchenschrank steht.

Diese beiden Querstreben verschraubst Du später mit den beiden Seitenwänden, die hintere zusätzlich mit der Rückwand.

Durch diese Bohrlöcher verschraubst Du später den Korpus des Spülenschrankes.

Die vorgebohrte, linke Seitenwand kann spiegelverkehrt als Bohrschablone verwendet werden: Dazu die Löcher ohne Senker durchbohren und anschließend auf der Rückseite (spätere Außenseite) senken.

Auf der Innenseite der rechten Seitenwand mit dem Bleistift die Linien (gestrichelt dargestellt) entsprechend der Skizze anzeichnen. Diese Linien brauchst Du später zum Einpassen der Türscharniere.



Siebdruckplatten schleifen
Die Kanten aller Siebdruckplatten mit dem Exzenterschleifer schleifen, bis alle rauen Stellen glatt sind.
Korpus verschrauben
Die Rückwand außen und hinten bündig auf die Bodenplatte stellen, zwischen den Seitenwänden ausrichten und mit insgesamt 23 Schrauben (4,5x40 mm) mit Seitenwänden und Bodenplatte verschrauben.
Querstreben mit Korpus verschrauben
Die Querstreben außen und oben bündig zwischen den Seitenwänden ausrichten und mit je vier Schrauben (4,5x40 mm) mit den Seitenwänden verschrauben, die hintere Strebe zusätzlich mit vier Schrauben (4,5x40 mm) mit der Rückwand.
Einlegeboden mit Korpus verschrauben
Den Einlegeboden einschieben und mit vier Schrauben je Seite (4,5x40 mm) mit dem Korpus entsprechend der Bohrskizze der Seitenwände verschrauben.
Sockel verschrauben
Die Sockelstreifen mit dem Schreinerwinkel im rechten Winkel ausrichten und entsprechend den Bohrskizzen mit insgesamt acht Schrauben (4,5x40 mm) miteinander verschrauben.
Sockel mit Bodenplatte verbinden
Korpus umdrehen und den Sockel in der Tiefe mittig und seitlich bündig auflegen. An jeder Außenseite innen zwei Winkel (40x40x40 mm) im Abstand von 40 mm nach vorne bzw. hinten ausrichten. Winkel mit je vier Schrauben (3,5x16 mm) an Bodenplatte und Sockel verschrauben.
Möbelfüße anbringen
Vier Möbelfüße im Abstand von 50 mm nach vorne bzw. hinten mit je vier Schrauben (3,5x16 mm) direkt vor die Winkel auf die Bodenplatte schrauben.
Scharniere auf der Tür montieren
Entsprechend der Skizze zwei Markierungen für die Zentrierspitze des Forstnerbohrers (40 mm) aufzeichnen und 15 mm tief bohren. Anschließend die Scharniere verschrauben.
Tür montieren
Die Scharniere entsprechend der Seitenwand-Skizze (innen) an der rechten Seitenwand verschrauben: Die Oberkante des oberen Scharniers liegt an der Linie (30 mm zur oberen Kante) an. Die Unterkante des unteren Scharniers liegt an der Linie (30 mm zur unteren Kante) an. Auf der senkrechten Linie (36 mm zur Seite) werden die Schrauben gesetzt. Anschließend den Push-to-open-Türöffner gemäß Herstelleranleitung auf der Innenseite der linken Seitenwand mit dem beiliegenden Montagematerial befestigen.
Küchenteile zusammensetzen
Zuschnittsliste Rhombusleisten Spülenschrank:
- Seitenwand rechts: 12 Stücke à 583 mm
- Rückwand: 12 Stücke à 1170 mm
- Tür: 12 Stücke à 537 mm
- Spritzwand: 7 Stücke à 1770 mm
Info: Der Rücksetzer verbindet später den Spülenschrank (Teil 2) mit dem Küchenschrank (Teil 3).
Zuschnittliste Rhombusleisten Küchenschrank:
- Rückwand: 12 Stücke à 600 mm
- Tür: 12 Stücke à 588 mm
Zuschnittliste Rhombusleisten Grillschrank:
- Seitenwand links: 10 Stücke à 583 mm
- Rückwand: 10 Stücke à 1008 mm
- Rechte Tür: 10 Stücke à 493 mm
- Linke Tür: 10 Stücke à 493 mm

Jede Rhombusleiste entsprechend der Skizze von vorne vorbohren. Beachte, dass einige Rhombusleisten vor dem Vorbohren an die Aussparung für den Wasseranschluß angepasst werden müssen.

Küchenteile zusammenschieben
Die Rhombusleisten müssen für eine gute Optik an allen Küchenteilen auf gleicher Höhe montiert werden. Es ist deshalb ratsam, alle Küchenteile auf ebenem Untergrund zusammenzustellen und zuerst an allen Teilen die unterste Reihe Rhombusleisten unten bündig anzubringen, dann an allen Teilen die zweite Reihe usw.
Rhombusleisten anbringen
Die Rhomusleisten auf den Seiten (wie bei den Zuschnittlisten angegeben) mit je einer Schraube (3,5x30 mm) entsprechend der Skizze an jedem Ende montieren. Die erste Rhombusleiste unten bündig anbringen. Der Abstand der Leisten zueinander entspricht zwei Zollstockbreiten. Beachte hierzu die folgende Skizze zum Abschluß der Leisten.

Betonplatten auflegen
Auf den Kanten der Rückwände und Seitenteile der beiden hohen Schränke Silikon auftragen und anschließend die Betonplatten mit der glatten Seite nach oben allseits bündig darauf ausrichten.
Spüle einsetzen
Silikon auf den Spülenrand auftragen und die Spüle einsetzen. Küchenarmatur einsetzen und die Ablaufgarnitur der Spüle anbringen.
Garnitur befestigen
Den Hahnverbinder von unten an die Küchenarmatur schrauben und einen Gartenschlauch zur Wasserzufuhr daran befestigen. ACHTUNG: Je nach Anschlussmaterial (wie z. B. bei einem Gartenschlauch) ist das Wasser aus dem Hahn nicht trinkbar. Trinkwasserschläuche und passendes Zubehör findest du bei Bedarf im HORNBACH Onlineshop.
Spritzschutz ausrichten
Den Spritzschutz auf den Betonplatten der zusammengeschobenen Schränke (Spülenschrank und Küchenschrank) bündig setzen ...
Spritzschutz montieren
... und mit sechs Schrauben (4,5x50 mm) auf den Rhombusleisten der Rückwand verschrauben.
Sicherheitshinweise
Diese Anleitung wurde mit größtmöglicher Sorgfalt erstellt, kann aber immer nur ein mögliches Vorgehen aufzeigen. Eigene Fähigkeiten daher realistisch einschätzen und bei Unsicherheit unbedingt fachmännischen Rat hinzuziehen!
HORNBACH haftet nicht bei Fehlgebrauch von Materialien und Werkzeugen sowie bei nicht sach- und fachgerechter Montage.
- Keines der Möbelstücke darf zum Klettern oder Turnen benutzt werden. Um Sturzunfällen vorzubeugen, insbesondere Kindern das Risiko bewusst machen.
- Bei allen Arbeitsschritten geeignete Schutzausrüstung tragen.
- Sägeraue Oberflächen vor dem Möbelbau abschleifen, um Verletzungen (z. B. Splitter) vorzubeugen.
- Alle Kanten sind optimalerweise mit einer Oberfräse (Fräser mit Mindestradius 3 mm) zu bearbeiten. Sollte keine Oberfräse vorhanden sein, muss die Kante von Hand auf einen Mindestradius von 2 mm geschliffen werden.






























