Schneide die benötigten Platten und Kanthölzer nach den nachfolgenden Maßangaben zu, z. B. mit einer Handkreissäge mit Führungsschiene. Die Kantholzzuschnitte gelingen am besten mit einer Kappsäge.
Bar mit Beleuchtung selber bauen: Das brauchst Du
Bar mit Beleuchtung vorbereiten
Du kannst die Bar mit den angegebenen Abmessungen bauen, oder nach Deinen Bedürfnissen und Raumgröße anpassen. Sie besteht aus einem Thekenkorpus (Unterteil) und, wenn gewünscht, einem Kopfteil. Beachte dabei die verfügbare Raumhöhe. Der Zwischenraum zwischen Theke und Kopfteil muss so hoch sein, dass du noch bequem durchschauen kannst. Das Kopfteil kann auch an der schmalen Seite verlängert werden, wenn es z. B. bis zur Wandfläche reichen soll.
Du kannst die Bar auch spiegelverkehrt bauen, wenn das in Deinem Raum günstiger ist.
Für die Installation der eingebauten Beleuchtung solltest du rechtzeitig mit einem Elektriker sprechen, der die Zuleitung verlegen muss.




Tipps beim Holzzuschnitt
Verwende die Plattenzuschnitte so, dass die schönere Seite – also die Plattenvorderseite – nach innen ausgerichtet ist. Später werden auf den Außenseiten Wandverblender aufgeklebt. Auf der Innenseite kannst Du die Kanthölzer und die Plattenzuschnitte lackieren, um das Holz vor Feuchtigkeit zu schützen. Sollen keine Wandverblender angebracht werden? Dann sollte die schönere Plattenseite nach außen zeigen. Allerdings bleiben bei dieser Variante später die Schraubenköpfe sichtbar, falls Du sie nicht verspachtelst und die kompletten Plattenaußenseiten lackierst.
Thekenkorpus für Bar bauen
Platten für Bar zuschneiden
Bar selber bauen: Platte (1) Bohren & Senken
Bohre die zugeschnittenen Platten (1) an den Positionen (+) in der Zeichnung mit 5 mm vor.
Hinweis: Senke alle Schraubenlöcher auf der Seite, auf der die Senkkopfschrauben eingedreht werden.
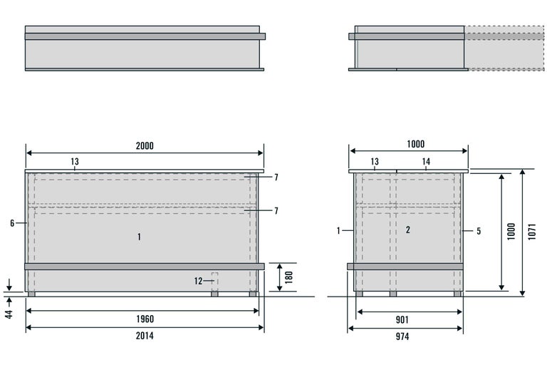
1) 1960 x 1000 mm (1x)

Platte (2, 5 & 6) Bohren & Senken
Bohre und senke die Schraubenlöcher in den Platten (2), (5) und (6) wie in den Maßzeichnungen angegeben.
2) 901 x 1000 mm (1x)
5) 341 x 1000 mm (1x)
6) 341 x 1000 mm (1x)

Kanthölzer für Bar mit Beleuchtung zuschneiden
Für die Eckverbindungen der Platten werden Kanthölzer 44 x 44 mm zugeschnitten. Bohre die Kanthölzer gem. Maßzeichnung mit 5 mm vor und senke die Bohrungen. Schneide die Fußstütze (22) und (23) aus Kanthölzern 54 x 54 mm zu.
Tipp: Lackiere die Kanthölzer (4) und (12) unten auf einer Länge von ca. 50 mm mit einem farblosen Lack, damit das Holz gegen Feuchtigkeit geschützt ist.
| Nr. | Stück | Kantholz | Länge |
|---|---|---|---|
| 3 | 3 | 44 x 44 mm | 250 mm |
| 4 | 3 | 767 mm | |
| 7 | 2 | 1834 mm | |
| 8 | 2 | 794 mm | |
| 9 | 4 | 297 mm | |
| 10 | 2 | 1834 mm | |
| 11 | 2 | 497 mm | |
| 12 | 12 | 150 mm | |
| 22 | 1 | 54 x54 mm | 2014 mm |
| 23 | 1 | 939 mm |

Thekenkorpus für Bar: Kanthölzer anschrauben
Schraube die Kanthölzer (3) und (4) von der Rückseite an, seitlich um 19 mm nach innen versetzt – nutze dazu als Montagehilfe einen schmalen Streifen einer 19 mm dicken Platte. Die Kanthölzer (4) stehen nach unten 44 mm über.
Auflage für Thekenkorpus montieren
Als Auflage für die Arbeitsplatte und den Zwischenboden werden an den Platten (1), (2), (5) und (6) waagerecht die Kanthölzer (7), (8) und (9) angebracht. Klemm die Kanthölzer dazu mit Schraub- oder Klemmzwingen fest. Kontrolliere, ob zwischen den vertikalen Kanthölzern (3) und (4) eine Lücke von mindestens 27 mm für die Arbeitsplatte bleiben und die Füße unten 44 mm über die Unterkante der Platte ragen.
Thekenkorpus für Bar: Platten ausrichten
Stelle die beiden Platten mit einem Helfer auf – mit ausreichend Abstand zur Wand für die Montage. Lege dabei ein 44 mm dickes Kantholz-Reststück unter jede Platte. So kannst Du die Platten leichter ausrichten und besser verschrauben. Verschraube die Platten (1) und (2) mit Senkkopfschrauben 4,5x40 mm an dem Vierkantholz.
Seitenstreifen am Thekenkorpus montieren
Nun werden die beiden Seitenstreifen (5) und (6) montiert: Lege dazu auch hier ein Reststück vom Kantholz (44x44 mm) unter. Setze die beiden Seitenstreifen (5) und (6) oben bündig an den Platten (1) und (2) an und verschraube sie mit den Vierkanthölzern.
Bar mit Beleuchtung: Kanthölzer verschrauben
Verschraube ein Kantholz (11) mit einem einem Abstand von 253 mm mit Kantholz (10) mit einer Senkkopfschraube 5 x 80 mm – beachte, dass die Schraubenlöcher zum späteren Anschrauben der Arbeitsplatte und des Zwischenbodens vertikal verlaufen. Wiederhole diesen Arbeitsschritt mit den zweiten Vierkanthölzern (10) und (11).
Montageauflage montieren
Klemme für den nächsten Arbeitsschritt Holzbrettchen unter die Hölzer (8) und (9). Sie dienen als Montageauflage für die soeben vormontierten Kanthölzer (10) und (11).
Kanthölzer mit Montageauflage verschrauben
Lege die Kanthölzer (10) und (11) auf die Montageauflage und verschraube sie von außen durch die Seitenstreifen (5) und (6) mit den Schrauben 5 x 80 mm. Befestige danach in gleicher Weise auch die unteren Kanthölzer (10) und (11).
Fußstütze am Thekenkorpus montieren
Außen am Thekenkorpus werden die Kanthölzer (22) und (23) als Fußstütze angebracht. Markiere dazu auf den Platten die Unterkante der Fußstützen mit einem Abstand von 123 mm zur Plattenunterkante. Trage auf Höhe der Schraubenlöcher etwas Holzleim auf und klemme die Fußstützen mit Klemmzwingen an den Platten fest. Verschraube die Fußstützen anschließend von innen mit Senkkopfschrauben 4,5 x 40 mm.
Bar mit Beleuchtung bauen: Arbeitsplatte zuschneiden
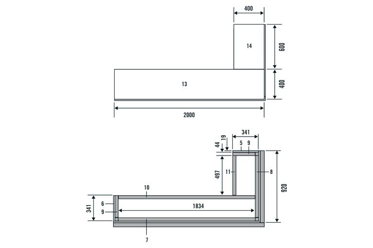
Schneide aus einer 27 mm dicken Leimholzplatte die Arbeitsplatte und die Ablagefläche zu.
13) 2000 x 400 mm (1x)
14) 600 x 400 mm (1x)
31) 1922 x 341 mm (1x)
32) 541 x 341 mm (1x)
Zwischenböden im Inneren der Bar montieren
Nun werden die beiden Zwischenböden (31) und (32) montiert: Setze zuerst den langen Zwischenboden (31) ein und schiebe anschließend den kurzen Zwischenboden (32) ein. Verschraube die Zwischenböden nun von unten mit Senkkopfschrauben 4,5x60 mm mit den Vierkanthölzern.
Bar mit Beleuchtung: Theke ausrichten
Schiebe den Thekenkorpus mit einem Helfer an die endgültige Position. Die Theke kann durch die drei Füße auch bei leicht unebenem Boden nicht wackeln. An den Seitenstreifen wird jeweils ein zusätzlicher Fuß (12) montiert. Verschraube die Füße (12) mit den Seitenstreifen (5) und (6) mit Schrauben 4,5x40 mm. Möglicherweise musst Du nach dem Anzeichen der Höhe die Theke noch einmal von der Wand abrücken, um einen der beiden Füße verschrauben zu können.
Arbeitsfläche der Bar positionieren
Lege die Arbeitsplatten (13) und (14) auf die oberen Kanthölzer auf und richte sie innen bündig an den Kanthölzern aus. Nach außen stehen die Platten etwa 40 mm über.
Arbeitsfläche mit dem Thekenkorpus verschrauben
Die Arbeitsplatte von unten durch die Kanthölzer mit Senkkopfschrauben 4,5 x 60 mm verschrauben.
Arbeitsfläche anschleifen & streichen
Schleife die Platte für den Anstrich mit 180er-Schleifpapier. Die Plattenkanten werden so geschliffen, dass eine gleichmäßige Rundung von ca. 5 mm entsteht. Danach kann die Platte gestrichen werden, z. B. mit einem farblosen Hartwachsöl.
Bar mit Beleuchtung bauen: Holzverblender anbringen
Beginne beim Verkleiden mit Holzverblendern unten auf den Fußstützen und arbeite nach oben. Die Anleitung „Holzverblender anbringen“ zeigt Dir Schritt für Schritt wie's geht!
Bar mit Beleuchtung: Kopfteil bauen
Kopfteil mit Beleuchtung vormontieren
Das Kopfteil wird komplett vormontiert und erst dann an der Decke angebracht. Schneide dazu die 3-Schicht-Platten (19 mm) nach der Maßzeichnung zu.
Bohre die Befestigungslöcher (+) an den Platten (18), (19), (20) und (21) mit 5 mm vor. Die Bohrungen in den Platten (13) und (14) richten sich in Durchmesser, Position und Anzahl nach den Maßen der Einbauleuchten und ihrer Anzahl. Willst Du gar keine Leuchten einbauen? Dann entfallen diese Bohrungen.
13) 1600 x 400 mm (1x)
14) 1000 x 400 mm (1x)
18) 1960 x 354 mm (1x)
19) 901 x 354 mm (1x)
20) 1551 x 354 mm (1x)
21) 600 x 354 mm (1x)
33) 322 x 354 mm (1x)

Platten für Bar-Kopfteil verbinden
Bereite die beiden Platten (20) und (21) für das Verbinden mit Flachdübeln vor. Lege sie dazu auf eine ebene Unterlage und richte sie in der späteren Position aus. Markiere die Mitte der drei Dübel auf beiden Platten und fräse die Dübelschlitze einzeln mit der Flachdübelfräse. Richte Dich bei der Anwendung nach der Bedienungsanleitung der verwendeten Maschine.
Holzleim auf Verbindungsflächen auftragen
Trage auf die Verbindungsflächen Holzleim auf, stecke die Lamellendübel in die Ausfräsungen und verbinde die beiden Platten dicht miteinander. Lasse die Leimverbindung aushärten bevor Du weiter arbeitest.
Bar bauen: Löcher für Leuchten bohren
Unterlege die verbundenen Platten mit Holzresten. Mit der Lochsäge werden an den markierten Positionen die Löcher für die Leuchten gebohrt. Achte auf den richtigen Durchmesser für die verwendeten Einbauleuchten.
Plattenkanten des Kopfteils abrunden
Schleife die Holzflächen für den Anstrich. Die Plattenkanten werden wieder auf Ø 5 mm abgerundet. Die Holzflächen kannst Du nun mit Deiner Wunschfarbe oder einfach mit einem Hartwachsöl streichen.
Seitenwände des Kopfteils montieren
Die Seitenwände werden mit den Kanthölzern (15), (16) und (17) auf den beiden Platten montiert. Bohre die Schraubenlöcher (+) in den Kanthölzern mit 5 mm vor.
| Nr. | Stück | Kantholz | Länge |
|---|---|---|---|
| 15 | 2 | 44 x 44 mm | 1917 mm |
| 16 | 1 | 920 mm | |
| 17 | 1 | 600 mm | |
| 34 | 1 | 54 x 54 mm | 2014 mm |
| 35 | 1 | 939 mm |

Kanthölzer auf dem Bar-Kopfteil ausrichten
Markiere die Positionen der Kanthölzer mit gleichen Abständen nach innen und außen auf den Platten und trage dort Holzleim auf.
Bar selber bauen: Kanthölzer mit Kopfteil verschrauben
Lege die Kanthölzer auf und verschraube sie mit Senkkopfschrauben 4,5 x 60 mm mit den beiden Platten.
Seitenwände für Kopfteil verleimen
Trage Holzleim an den Außenseiten der Kanthölzer sowie auf den Verbindungsflächen der Seitenwände (18), (19), (20), (21) und (33) auf. Stell die Seitenwände so an die Kanthölzer, dass die Platten an den Ecken stumpf zusammenstoßen. Verbinde die Platten (18) mit (19) und (20) mit (21) sowie (33) mit (19) und (21) mit insgesamt 8 Stuhlwinkeln.
Seitenwände für Kopfteil verschrauben
Verschraube die Seitenwände jetzt mit den Kanthölzern mit Senkkopfschrauben 4,5 x 40 mm.
Kopfteil für Bar verblenden
Verschraube die Vierkanthölzer (34) und (35) von innen an den Seitenwänden mit einem Abstand von 44 mm zur oberen Kante. Als Hilfe kannst Du ein Stück Vierkantholz 44 x 44 mm anlegen.
Nun werden die äußeren Seitenwände zwischen den Platten und den Vierkanthölzern mit Holzverblendern verkleidet. Oberhalb der Kanthölzer bleiben die Platten für die Deckenbefestigung frei.
Deckenmontage: Kopfteil mit Beleuchtung
Elektroanschluss vorbereiten lassen
Für den Anschluss einer Niedervolt-LED-Beleuchtung müssen die benötigten Anschluss-Steckdosen vom Fachmann, einem Elektriker installieren werden.
Beachte: Die Decke muss für die vorgesehene Befestigung geeignet sein. Am besten geeignet ist eine Betondecke und die Verwendung von Schwerlastankern.
Markiere an der Decke exakt die Position der Kanthölzer zur Befestigung des Kopfteiles – dabei müssen die Innenmaße des Kopfteiles zu den Außenabständen der Befestigungshölzer passen.
Bohre an den Kanthölzern die Schraubenlöcher vor. Benutze die Kanthölzer dann als Bohrschablone für die Schwerlastanker an der Decke – dann passen die Bohrlöcher genau zusammen.
Bar bauen: Einbauleuchten anschließen
Lege als Schutz eine Holzplatte oder Karton auf die Theke und darauf ein paar Kanthölzer. Bereite 3 Stützen vor, die in der Länge zum Abstand zwischen Theke und Kopfteil passen. Hebt nun das Kopfteil auf die Theke. Schließe die Einbauleuchten an und prüfe die Kabelverbindungen sowie die Funktion der Leuchten. Dazu werden die LED-Einbauleuchten vorübergehend angeschlossen. Wenn alles funktioniert, werden die Leuchten wieder entfernt. Hebt jetzt das Kopfteil bis zu den Kanthölzern an der Decke an und stellt sofort die Stützen darunter.
Kopfteil an der Decke verschrauben
Verschraube das Kopfteil durch die seitlichen Befestigungslöcher mit Senkkopfschrauben 4,5 x 60 mm mit den Vierkanthölzern an der Decke. Die Stützen dürfen erst entfernt werden, wenn das Kopfteil sicher montiert ist.
Bar mit Beleuchtung: Leuchten einsetzen
Verbinde die LED-Einbauleuchten mit den Anschlusskabeln und steck sie in die Lampenöffnungen.
Zierleiste am Theken-Kopfteil anbringen
Decke den Bereich mit den Befestigungsschrauben mit dünnen Sperrholzstreifen ab – sie werden nur leicht angeklebt. Falls das Kopfteil später einmal abgenommen werden soll, brauchst Du nur die Holzstreifen zu entfernen, um die Schrauben lösen zu können.
Regal für Bar mit Beleuchtung selber bauen
Kanthölzer für Bar-Regal vorbereiten
Mit den nachfolgenden Arbeitsschritten kannst Du einen Regalboden ohne Konsolen bauen – die Wandbefestigung ist verdeckt. Du kannst auch gleich mehrere Böden bauen und diese verbinden. Die hier vorgeschlagene Größe kann individuell angepasst werden.
Bereite die Kanthölzer 24 x 44 mm in den benötigten Längen vor. Bohre die Schraubenlöcher vor: in das Kantholz (24) zwei Bohrungen ohne Senkung mit 8 mm für die Wandbefestigung. Alle weiteren Bohrungen werden mit 5 mm gebohrt und gesenkt.
24) 600 mm (1x)
25) 688 mm (1x)
26) 100 mm (2x)

Schrauben in das Kantholz stecken
Steck die 6-kant-Holzschrauben mit Unterlegscheiben in das Kantholz (24) ein. Wird das Regal an einer Stein- oder Betonwand befestigt? Dann brauchst Du noch die passenden Dübel. In jedem Fall muss die Wand für die Befestigung geeignet sein.
Bar-Regal: Außenverkleidung vorbereiten
Die Außenverkleidung des Regalbodens wird aus 4 mm starkem Sperrholz angefertigt. Falls Du das Regal nicht in der Ecke montierst, benötigst Du noch einen weiteren schmalen Seitenstreifen (27).
27) 696 x 24 mm (1x)
28) 144 x 24 mm (1x)
29) 696 x 148 mm (2x)

Kanthölzer für das Bar-Regal verschrauben
Lege die Kanthölzer (25) und (26) nun zum Verschrauben auf eine flache Unterlage. Trage an den Verbindungsflächen Holzleim auf und verschraube die Hölzer mit Senkkopfschrauben 5,0 x 80 mm.
Leime die beiden Seitenstreifen (27) und (28) an den Schmalseiten an. Die Verkleidung (29) der Unterseite wird ebenfalls mit Leim am Regalboden angebracht.
Möchtest Du Dir die Möglichkeit offenhalten, das Regal später wieder einfach abzunehmen? Dann befestige die untere Abdeckung mit Senkkopfschrauben 3,0x16 mm statt mit Holzleim.
Bar bauen: Regalboden verschrauben
Der vorgefertigte Regalboden wird nach dem Aushärten der Verleimungen an der Wand verschraubt. Lege dazu mit einer Wasserwaage die Position fest und markiere die beiden Bohrlöcher an der Wand, indem Du die Sechskantschrauben mit etwas Druck drehst – so überträgst Du die Markierungen auf die Wand. Lege das Regal wieder beiseite und bohre an den Markierungen die Dübellöcher. Nach dem Einstecken der Dübel kann das Regal angeschraubt werden.
Regalboden abdecken
Trage etwas Holzleim auf die Verbindungsflächen auf und verleime dann die obere Verkleidung (29).
Die beiden Regalböden werden miteinander verschraubt, um die Stabilität zu steigern.


































